
Varianten
Das Bestandsgebäude aus den 1960er-Jahren wurde im Rahmen einer ganzheitlichen Sanierung zukunftsfähig gemacht.

Aufstockung
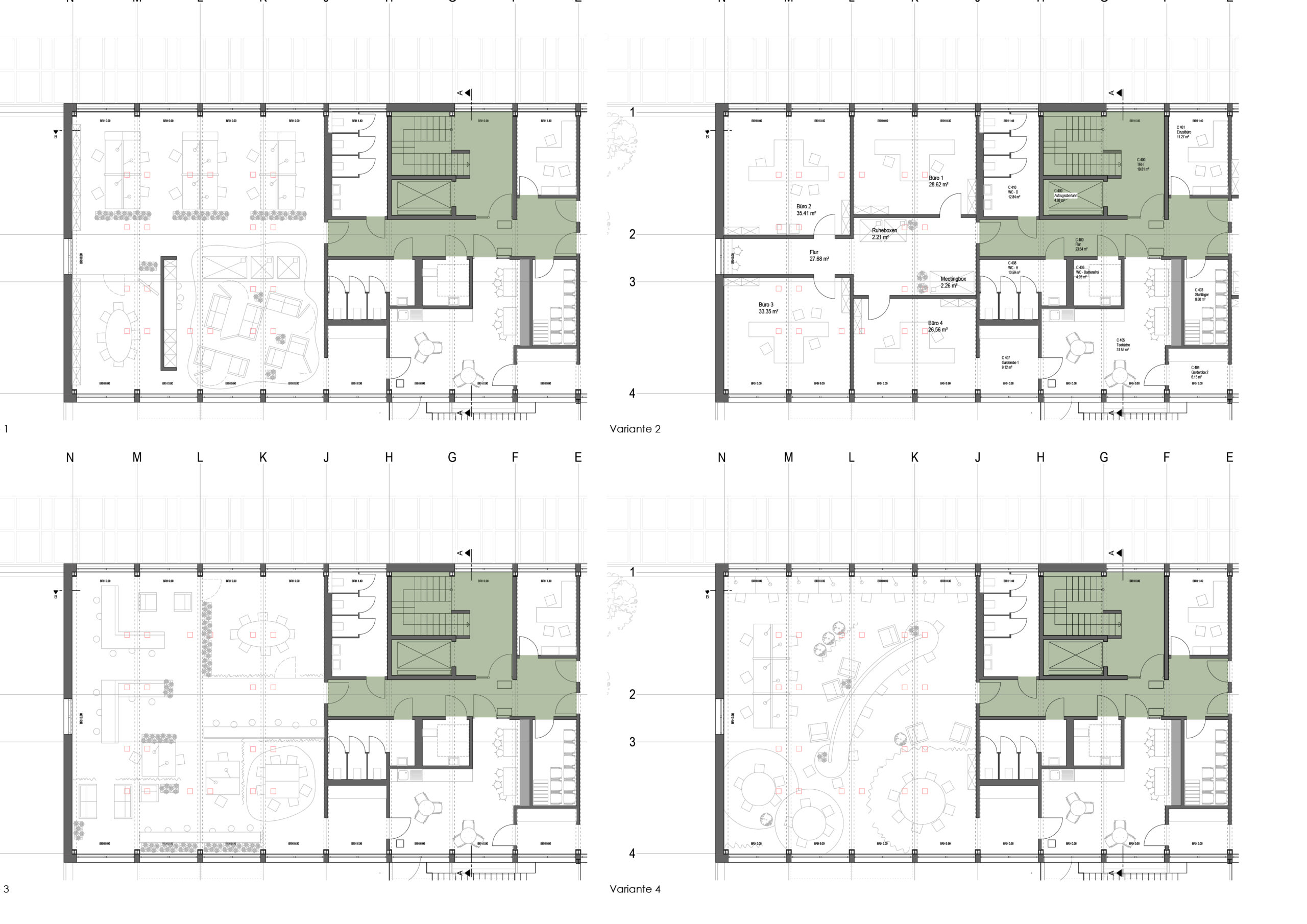
Gleichzeitig wurde die bestehende Bürofläche optimiert und flexibel neu organisiert, um zeitgemäße Arbeitswelten zu ermöglichen. Eine zusätzliche Aufstockung erweitert das Raumangebot und fügt sich harmonisch in die bestehende Architektur ein.

Flexibilität
So entsteht ein architektonisch wie ökologisch zukunftsorientiertes Gebäude, das den Charme seiner Ursprungsepoche bewahrt und zugleich den Anforderungen moderner Nutzung gerecht wird. Der stützenfreie Grundriss lässt eine flexible Nutzung bzw. Umnutzung zu.
